L’éco-quartier des Plains Champs
Des maisons dans un parc
En savoir plus
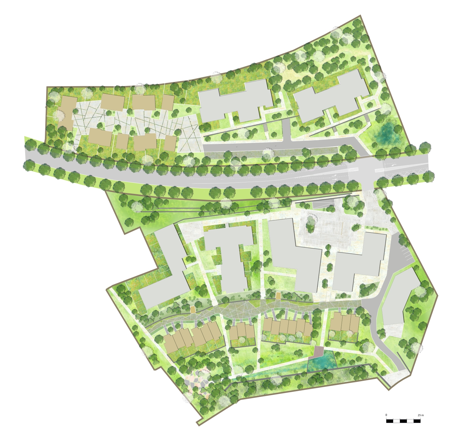
Au cœur d’une ville arborée à caractère résidentiel, le projet s’articule autour d’un programme de 150 nouveaux logements dont 18 maisons inscrites au cœur du site et bordant un futur parc paysager. Ce projet d’éco-quartier proposera de nombreux services (crèches, commerces…) articulés autour d’une place majeure qui marquera l’entrée du site.
Des ambiances de prairies, de boisements, et de belvédères sur la Défense, construisent le paysage de ce quartier. Un paysage apaisé, sans voiture (tous les véhicules sont stationnés dans un parking situé sous la place publique), constitué de liaisons douces et baigné dans une proportion importante d’espaces verts.
Nous avons cherché sur ce projet à porter notre réflexion sur la récupération, le traitement et une mise en scène plastique de l’eau de ruissellement qui s’écoule, dans la partie basse du site, vers un bassin intégré au parc paysager.
Louveciennes – 78
Informations
Type de projet: Habitations
Lieu: Usine Balsan à Châteauroux
Maître d’ouvrage: Vinci- Ogic, Constructa, France habitation, Sodes, Mairie de Louveciennes
Surface: 4.6 Ha
Montant: 5 M€
Avancement: Livré 2018
En savoir plus
L’équipe
Maîtrise d’œuvre:
- Partenaires architectes
- ElémenTerre paysages
- ECAU VRD
Les entreprises:
- Lot VRD : Colas
- Lot Espaces verts : La francilienne du Paysage
